賃貸マンション
レンタルオフィス
上海のオフィス賃貸、貸事務所ならサンズエステート 便利な検索機能で希望の賃貸情報を探せます。
オフィス新着
人気キーワード:
高層20階以上
中規模300〜600㎡
駅前徒歩1分
高級10元/㎡日以上
エリアから検索
沿線から検索
マップから検索
こだわり検索
サービスオフィス
今月の新着物件
中国からアクセス速度アップ。中国.cn
日本からアクセス速度アップ。日本.com
物件名:
住所:
最寄駅:
築年:
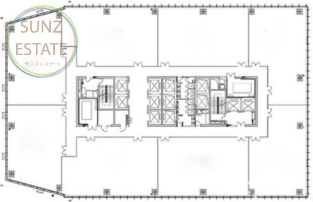
総階数,天井高:
入居テナント:
周辺環境:
備考:
国華人寿金融大厦/国华人寿金融大厦(GuoHua Life Financial Tower)
浦東新区
向城路288号×世紀大道
地下鉄
2
、
4
、
6
、
9
号線
「世紀大道駅」
徒歩7分
2012年
28階 2.7m
エレベータ:低層(2〜13階)、高層(15〜28階)
お問合せはお気軽にどうぞ。担当者がすぐにメールにて対応、内見ご案内致します。
物件詳細情報、周辺環境などのご質問もお受けしております。
この物件を内見希望
その他お問合せ
※必須
※必須
中国からアクセス速度アップ。中国.cn
日本からアクセスの方。Google Map表示。日本.com
周辺お勧め物件
陸家嘴商務広場
陸家嘴世紀金融広場
由由世紀広場
陸家嘴軟件園
Copyright© sunzestate.com
沪ICP备19033091号-6